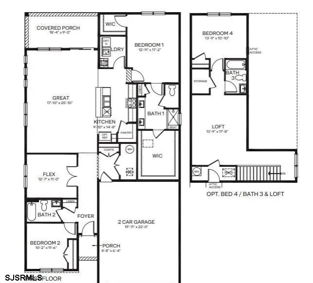
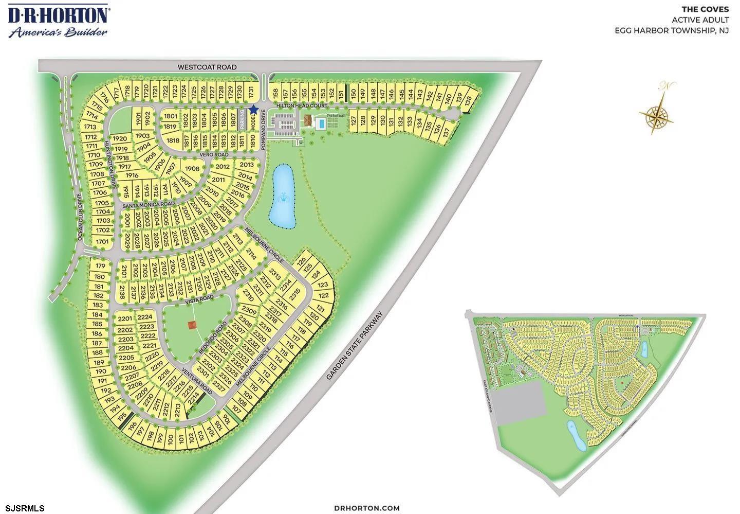
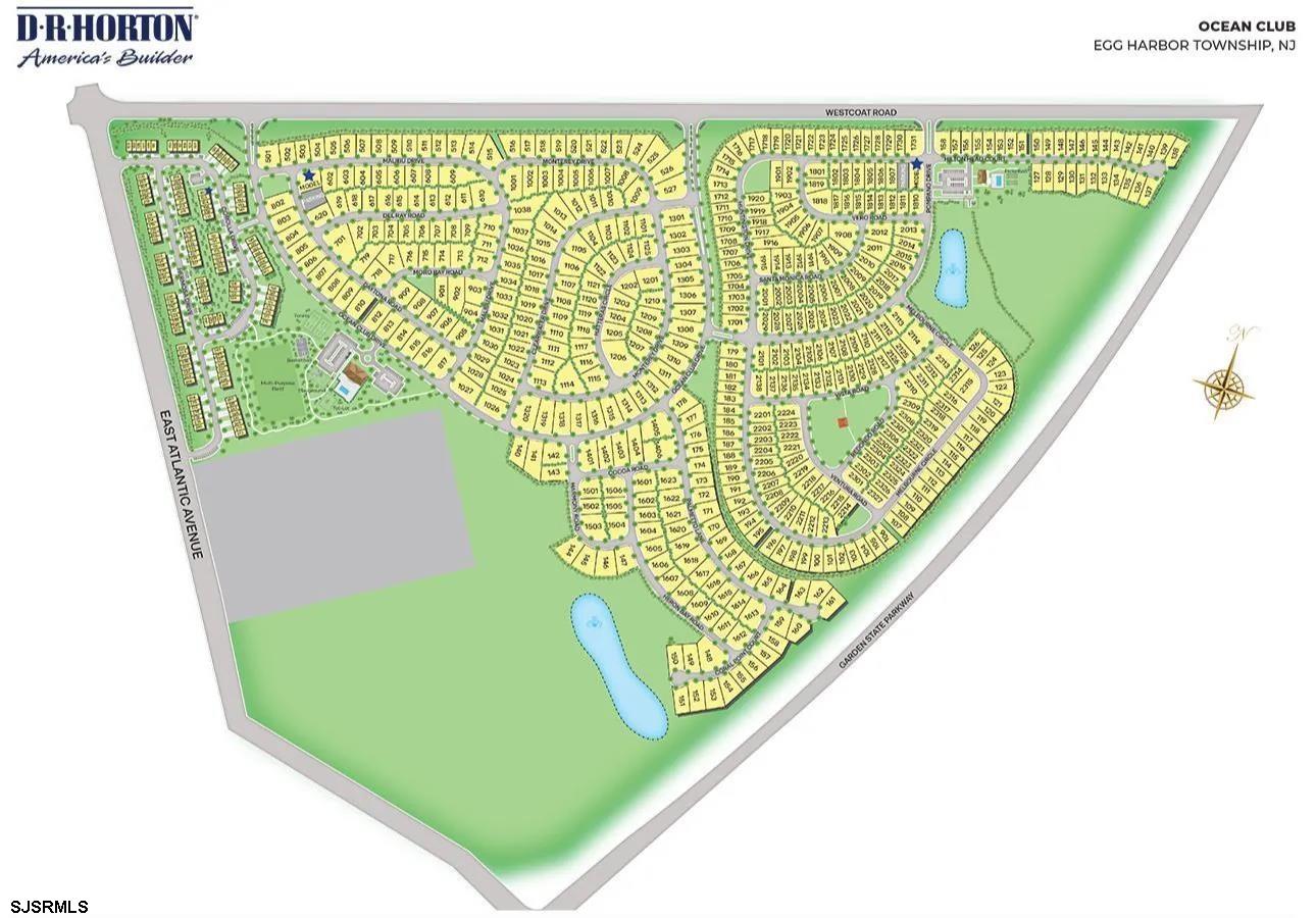
NEW ACTIVE ADULT COMMUNITY! The Clifton is a stunning new construction, ranch home plan featuring 1,865 square feet of living space, 2 bedrooms, a flex room, 2 bathrooms and a 2-car garage. With a roomy and flexible floor plan, the Clifton is just as inviting as it is functional! The foyer welcomes you in past a large bedroom, full bath and flex room, you decide how this space functions! The kitchen has plenty of counter space and a large modern island that s perfect for prep work, dining and entertaining guests. The kitchen opens to the spacious, open great room to be used however best fits your needs and lifestyle. Tucked behind the kitchen is the owner s suite which features a luxurious bathroom and two large walk-in closets, storage will not be an issue! Come see our NEW one-of-a-kind AMENITY FILLED COMMUNITY in Atlantic County offering a 3,500 Sq. Ft. Clubhouse with Gym, Outdoor Pool, Pickleball Courts, Bike Rack & Walking Trails for your enjoyment! The Coves at Ocean Club offers New Construction Ranch homes in Egg Harbor Township, with easy access to major communing routes situated only 2.9 miles from the Garden State Parkway, 1.4 miles from the AC Expressway, 4 quick miles to the AC Airport & only 17 miles to Ocean City's tranquil beach and boardwalk! America s 1 Homebuilder since 2002 offers the peace of mind and benefits of purchasing from a national builder, where you can experience the quality of life you've been looking for at a value you will appreciate! *Your new home also comes complete with our Smart Home System featuring a Qolsys IQ Panel, Honeywell Z-Wave Thermostat, Amazon Echo Pop, Video doorbell, Eaton Z-Wave Switch and Kwikset Smart Door Lock. Ask about customizing your lighting experience with our Deako Light Switches, compatible with our Smart Home System! **Photos representative of plan only and may vary as built. **Now offering closing cost incentives with use of preferred lender. See Sales Representatives for details and to book your appointment today!