HOME     VACATION RENTALS     SALES Monihan Realty - Ocean City NJ Rentals and Properties For Sale      COMPANY   OCEAN CITY CONTACT
Illustration of a gap

408 Bethel Rd, Somers Point

$2,500   | Active

Illustration of a gap

Type: COMMERCIAL/INDUSTRIAL    |   Bedrooms:    |   Bathrooms:    |   Half Baths: 0    |   0 Days on Market    |   MLS: 591103

PRINT THIS PAGE
Illustration of a gap
 
Illustration of a gap
Illustration of a gap

DESCRIPTION

Illustration of a gap

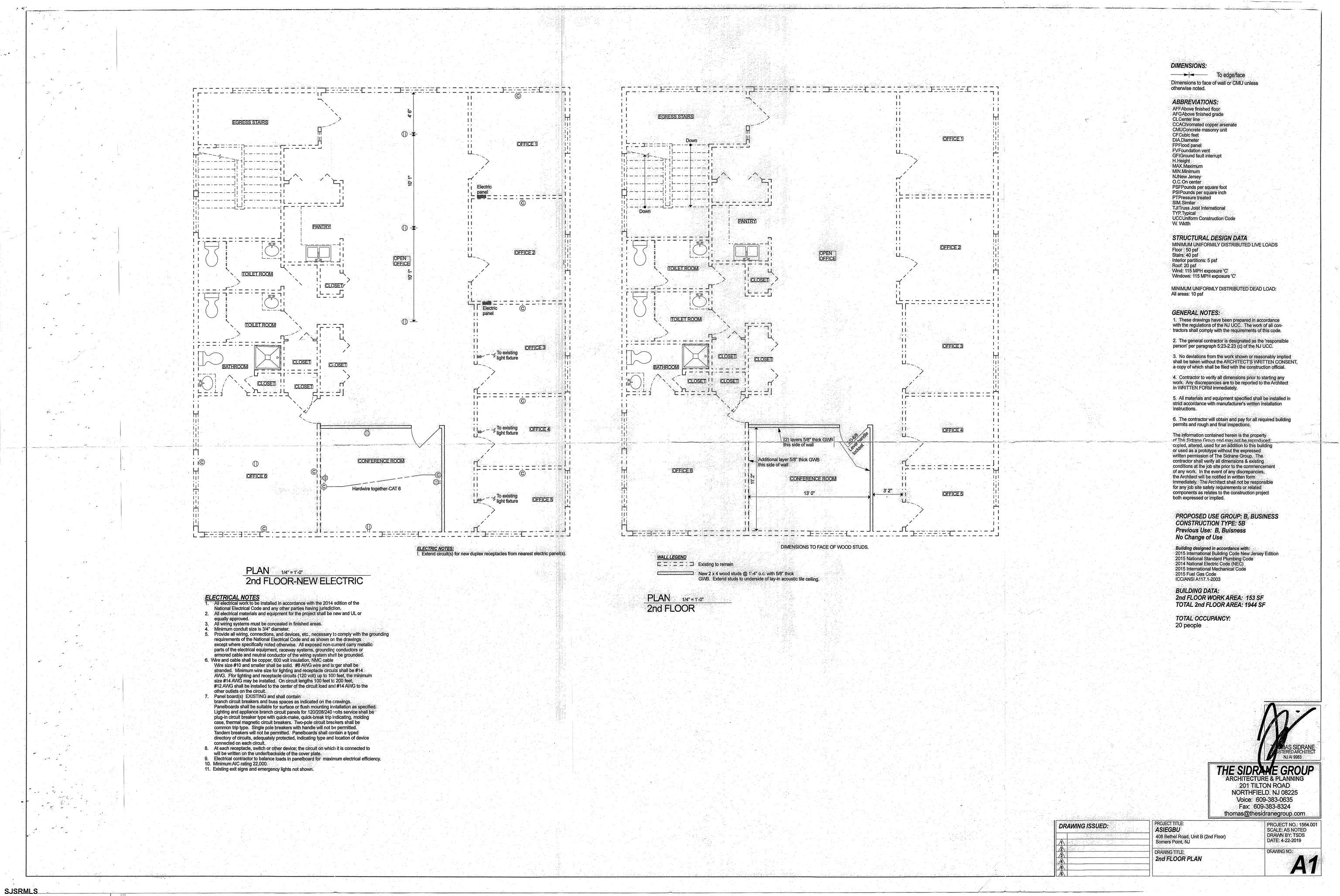
Fully Furnished Office Space in the Heart of Somers Point. Featuring six private offices, a boardroom, kitchenette, reception area, and three restrooms, this space is designed for efficiency and comfort. With perimeter offices and a central open bullpen, the layout works seamlessly for a wide range of businesses. See attached floor plan and contact us today for the full marketing package

AMENITIES

  • Heating:Forced Air   
  • Heating:Gas-Natural   
  • Cooling:Central  
  • Public Sewer  

PROPERTY LOCATION / MAP

Last Database Update: 10/25/2025
Illustration of a gapListing Courtesy of LEVIN COMMERCIAL REAL ESTATE, LLC.
© 2015 South Jersey Shore Regional MLS. All rights reserved. The data relating to real estate for sale on this web site comes in part from the Broker Reciprocity Program of the South Jersey Shore Regional MLS. Real Estate listings held by brokerage firms other than Monihan Realty are marked with the Broker Reciprocity logo (a little black house) and detailed information about them includes the name of the listing brokers. Information is deemed reliable but is not guaranteed. The broker providing these listings to be correct, but advises interested parties to confirm them before relying on them in a purchase decision. The information being provided is for the consumer's personal, non-commercial use and may not be used for any purpose other than to identify prospective properties in which they may be interested in purchasing.
Request Information
408 Bethel Rd, Somers Point
For Sale: $2,500
MLS: 591103

Bed: | Bath: LOT:irr | DOM:0
Illustration of a gap
Illustration of a gap
Illustration of a gap
Illustration of a gap
Illustration of a gap
Request Information
Illustration of a gap
Illustration of a gap
 
Office Location - 3201 Central Avenue, Ocean City New Jersey
3201 Central Avenue
Ocean City, NJ
609-399-0998
Monihan Realty - Ocean City New Jersey
Office Location - 717 Battersea Road, Ocean City New Jersey
717 Battersea Road
Ocean City, NJ
609-399-1311
 
Instagram Facebook YouTube
 
HOME
CONTACT
SITE MAP
ADMIN
VACATION RENTALS
- Ocean City NJ Rentals
- All Summer Rentals
- Let Us Help
- Owners
- Tenants
- Pay Online
REAL ESTATE / SALES
- Featured
- Ocean City NJ
- Off-Shore
- Search All
- Recently Sold
- Market Analysis
- List With Us
- Buyer / Seller Tools
COMPANY
- Why Monihan
- About Us
- Our History
- Meet The Team
- Office Directions
- Hours
OCEAN CITY NEW JERSEY
- Properties For Sale
- Vacation Rentals
- Things To Do
- Events Calendar
- Island Gallery
- Beach Cams
- Weather Report